Обяви За нас Контакти
Продава 2-СТАЕН
град Пловдив, Беломорски
68 900 €
134 756.69 лв.

(1 130 €, 2 210.09 лв./m2)
Цената е с включено ДДС
Коригирана в 11:19 на 2 март, 2026 год.
Обявата е посетена 277 пъти.
Площ:
61 m2
Етаж:
2-ри от 5
Строителство:
Тухла, Ще бъде въведен в експлоатация 2028 г.

Описание на имота:


🔈БЕЗ КОМИСИОН - ЦЕНИ ДИРЕКТНО ОТ ИНВЕСТИТОР 🔈 ОФЕРТА: 14547

● Агенция за недвижими имоти 'ГОЛД ИМОТИ' Ви представя проект от четири секции на четири етажа в кв.Беломорски.
● Избор от едностайни двустайни и тристайни апартаменти с различни етажи и изложения.

🛋️Разпределение:
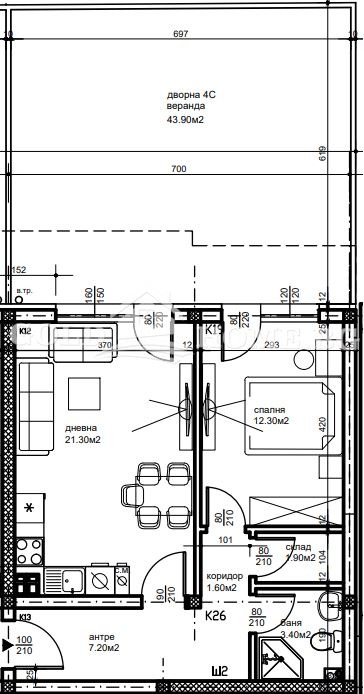
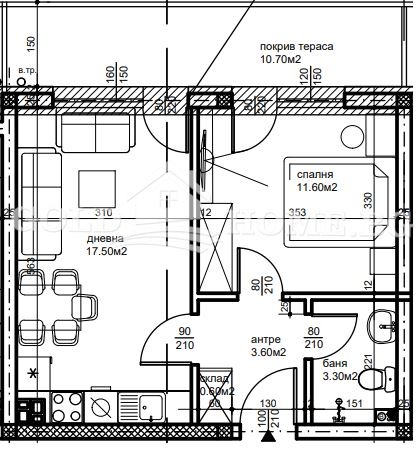
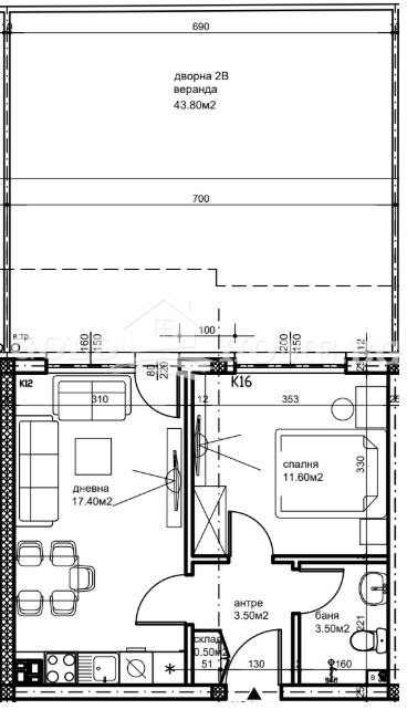
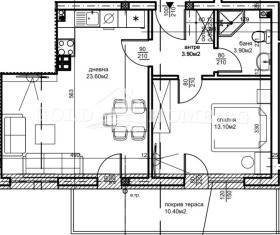
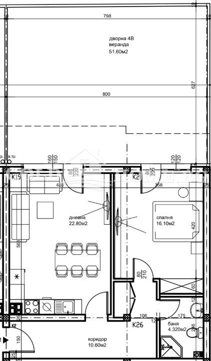
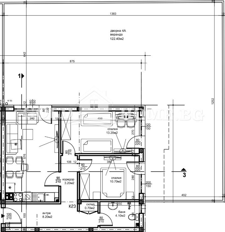
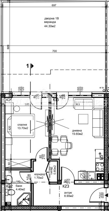
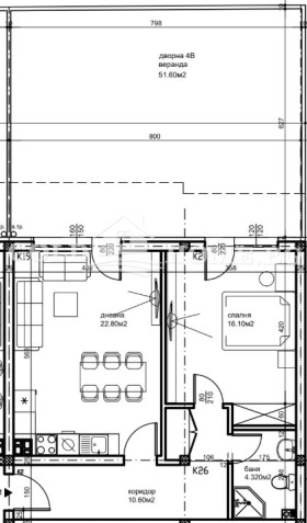
Двустайните жилища се състоят от: входно антре, всекидневна с кухненски бокс, спалня, баня с тоалетна, склад и тераса.

● Налични модули:
-60,22 кв.м - 68 900 евро
-61,03 кв.м + 10,70 кв.м тераса - 69 900 евро
-64,07кв.м. - 70 100 евро
-66,92 кв.м - 73 100 евро
-71,06 кв.м + 10,40 кв.м тераса - 73 900 евро
-67,46 кв.м - 75 800 евро
-49,01 кв.м + 42,90 дворна веранда - 77 500 евро
-50,02кв.м + 43,80 кв.м дворна веранда - 78 200 евро
-63,32 кв.м + 43,90 кв.м дворна веранда - 79 500 евро
-64,29 кв.м + 44,30 кв.м дворна веранда - 89 700 евро
-73,50 кв.м + 51,60 кв.м дворна веранда - 107 000 евро

🚗Паркиране:
Има възможност за покупка на паркоместа и партерни гаражи.

✅Степен на завършеност:
Жилищата се издават по БДС: шпакловка и замазка, ел. инсталация до ключ, ВиК до тапа, външна блиндирана врата, висок клас ПВЦ дограма.

📅 Срокове за изпълнение:
Очаква се въвеждане в експлоатация през лято 2028г.

🏗️За инвеститора и сградите:
- Сградите са ниски - 4 етажни, с малко апартаменти на етаж, което допълнително осигурява комфорт на живущите.
- Изпълнява се от инвеститор с опит в строителния бранш и вече завършени обекти.

📍Локация:
-Беломорски е квартал с модерен облик, спокойствие и потенциал, който съчетава близост до града и по-чист въздух. Подходящ е за хора, които предпочитат ново строителство и по-малко градски шум.
-Локацията осигурява бърз и удобен достъп до основни пътни артерии, Околовръстния път и посоката към Родопите, както и лесна връзка с централните части на града.
-Беломорски е отличен избор както за собствено жилище, така и за инвестиция, благодарение на нарастващото търсене и потенциала за бъдещо развитие.

➡️'ГОЛД ИМОТИ' Ви предлага да се възползвате от професионално кредитно посредничество чрез Credit Center при ипотека, потребителски кредит и рефинансиране!
-УСЛУГАТА Е ИЗЦЯЛО БЕЗПЛАТНА!
-ИЗГОТВЯНЕ НА НЯКОЛКО ОФЕРТИ ОТ ВОДЕЩИ БАНКИ!
-НАЙ-ИЗГОДНИ УСЛОВИЯ СПРЯМО ВАШИЯТ ПРОФИЛ!
-НЕ Е НЕОБХОДИМО ДА СЕ РАЗКАРВАТЕ ВЪВ ВСЕКИ КЛОН НА РАЗЛИЧНИ БАНКИ!
➡️ Още атрактивни и актуални оферти може да разгледате на нашият сайт : goldhome.bg
➡️За повече информация и при интерес за оглед, моля свържете се с нас.
Особености
Тухла
Асансьор
С гараж
С паркинг
Интернет връзка
Контрол на достъпа
За контакт:
0896 706 299
Брокер:
Иван Петов
0896706299
Офис: улица '' Брезовска '' 31а
Още оферти от брокера: Продава | Дава под наем | Купува | Наема
Агенция:
ГОЛД ИМОТИ
0899143262
ГОЛД ИМОТИ logo
Медал за прослужено време
В imot.bg от 2018 г.
gold_imoti.imot.bg
Адрес:
област Пловдив, гр. Пловдив, улица '' Брезовска '' 31а
ИЗПРАТИ ЗАПИТВАНЕ
ИЗПРАТИ ЗАПИТВАНЕТО

Продава 2-СТАЕН
град Пловдив, Беломорски
Обява: 1b176978681781712

68 900 €
134 756.69 лв.
(1 130 €, 2 210.09 лв./m2)

Цената е с включено ДДС
ЗАПАЗИ ОБЯВАТА

Местоположение: град Пловдив, Беломорски

Допълнителни данни за имотите в района и сравнение с други райони

Покажи

Период

и 3 месеца

* Средните цени са определени чрез медианна стойност